Tác giả Chủ đề: Thanh Hóa (Yên Định) - NNMU 40 - Hai Cô Sâm & Quy nghèo khó & cô độc  (Đã xem 18248 lần)

0 Thành viên và 1 Khách đang xem chủ đề.

Ngủ rồi qdiso

Nhóm xin ứng thêm số 20 triệu đồng để đưa tiền vật liệu cho nhà CC ạ.
Mong admin và BQT xem xét ạ.
Số tiền xin chuyển vào stk thủ quỹ NNMU số 40 của chị Hoa Xương Rồng.
Stk: 0781000398xxx
Trần Thị Thu Phương
Tại vietcombank TH

 
The following users thanked this post: ThaiDzuy, banbe6x, Tieuhuongduong, maitramtg


Ngủ rồi qdiso

NNMU 40 đang dần hoàn thiện. E xin cập nhật thông tin lên thêm ạ.

 
The following users thanked this post: maitramtg


Ngủ rồi qdiso

E xin cập nhật NNMU 40 ạ. Đến ngày hôm nay cơ bản xây xong, Bắn tôn và đang đợi đi ống a.

 
The following users thanked this post: ThaiDzuy, banbe6x, Tieuhuongduong, maitramtg


Ngủ rồi qdiso

Hôm nay theo kế hoạch máy múc sẽ san nền nhưng do trời mưa nên tổ thợ đang nghỉ ạ. 
E xin update hình ảnh hoàn thiện móng.

 
The following users thanked this post: ThaiDzuy, banbe6x, Tieuhuongduong, maitramtg


Ngủ rồi ThaiDzuy

  • Moderator
  • Người Tôi Cưu Mang
  • *****
  • Bài viết: 4.301
  • Thanked: 4615 times
  • Thích 15
  • Giới tính: Nam
ThaiDzuy gửi cả nhà hình ảnh tại hiện trường NNMU40 hôm qua:


Từ đây người biết thương người...
 
The following users thanked this post: banbe6x, maitramtg


Ngủ rồi Hoa xương rồng

Hoa xương rồng đã nhận được 20tr( Hai mươi triệu đồng chẵn) diễn đàn chuyển lần 1 cho NNMU 40. Cảm ơn các anh chị rất nhiều ạ!

 
The following users thanked this post: ThaiDzuy, banbe6x, maitramtg


Ngủ rồi banbe6x

  • BAN QUẢN TRỊ
  • Người Tôi Cưu Mang
  • *****
  • Bài viết: 12.793
  • Thanked: 11672 times
  • Thích 113
  • Giới tính: Nam
.....

Nhóm xin ứng trước số 20 triệu đồng để đưa tiền vật liệu và đặc biết là đặt tiền tôn trước vì nhóm sợ những ngày tới giá sẽ tăng thêm.
Mong admin và BQT xem xét ạ.
Số tiền xin chuyển vào stk thủ quỹ NNMU số 40 của chị Hoa Xương Rồng.
Stk: 0781000398xxx
Trần Thị Thu Phương
Tại vietcombank TH
Xin cám ơn. E sẽ cập nhật thông tin tiếp ạ

@Trangvitgioi : Em chuyển 20,000,000₫ các bạn đã ủng hộ cho NNMU số 41 tới bạn Hoa Xương Rồng để các bạn khu vực Thanh Hóa thực hiện chương trình dùm nhé.

Xin cảm ơn sự chung tay của cả nhà và chúc mọi người luôn mạnh khỏe ạ.

Thân mến.

Không mong Đến, chẳng cầu Đi
Không phân Khôn - Dại còn chi để buuồn
Tâm như nước chảy trên nguồn
Soi hình Tạo hóa mà không lưu hình
                                                          BS
 
The following users thanked this post: ThaiDzuy, maitramtg


Ngủ rồi qdiso

Chào cả nhà ạ!
Hiện tại NNMU số 40 đã thực hiện đào móng và bể phốt để cho thợ chuẩn bị làm móng xây rồi ạ.
Do xăng dầu lên cao nên hiện giá đều đội lên ạ. E đã lấy trước số lượng sắt và 5 tấn xi trước cùng ít gạch và cát rồi.
Nhóm xin ứng trước số 20 triệu đồng để đưa tiền vật liệu và đặc biết là đặt tiền tôn trước vì nhóm sợ những ngày tới giá sẽ tăng thêm.
Mong admin và BQT xem xét ạ.
Số tiền xin chuyển vào stk thủ quỹ NNMU số 40 của chị Hoa Xương Rồng.
Stk: 0781000398xxx
Trần Thị Thu Phương
Tại vietcombank TH
Xin cám ơn. E sẽ cập nhật thông tin tiếp ạ
« Sửa lần cuối: 13-03-2022 17:23:46 gửi bởi ThaiDzuy »

 
The following users thanked this post: ThaiDzuy, banbe6x, maitramtg


Ngủ rồi qdiso

E xin cập nhật về NNMU 40 ạ
Hiện hôm nay đã động thổ và máy đã múc để chuẩn bị làm móng rồi ah.

 
The following users thanked this post: ThaiDzuy, banbe6x, maitramtg


Ngủ rồi qdiso

Chào cả nhà ạ!
E xin lỗi vì sự chậm trễ này ạ. E xin cập nhật tình hình NNMU số 40 ạ.
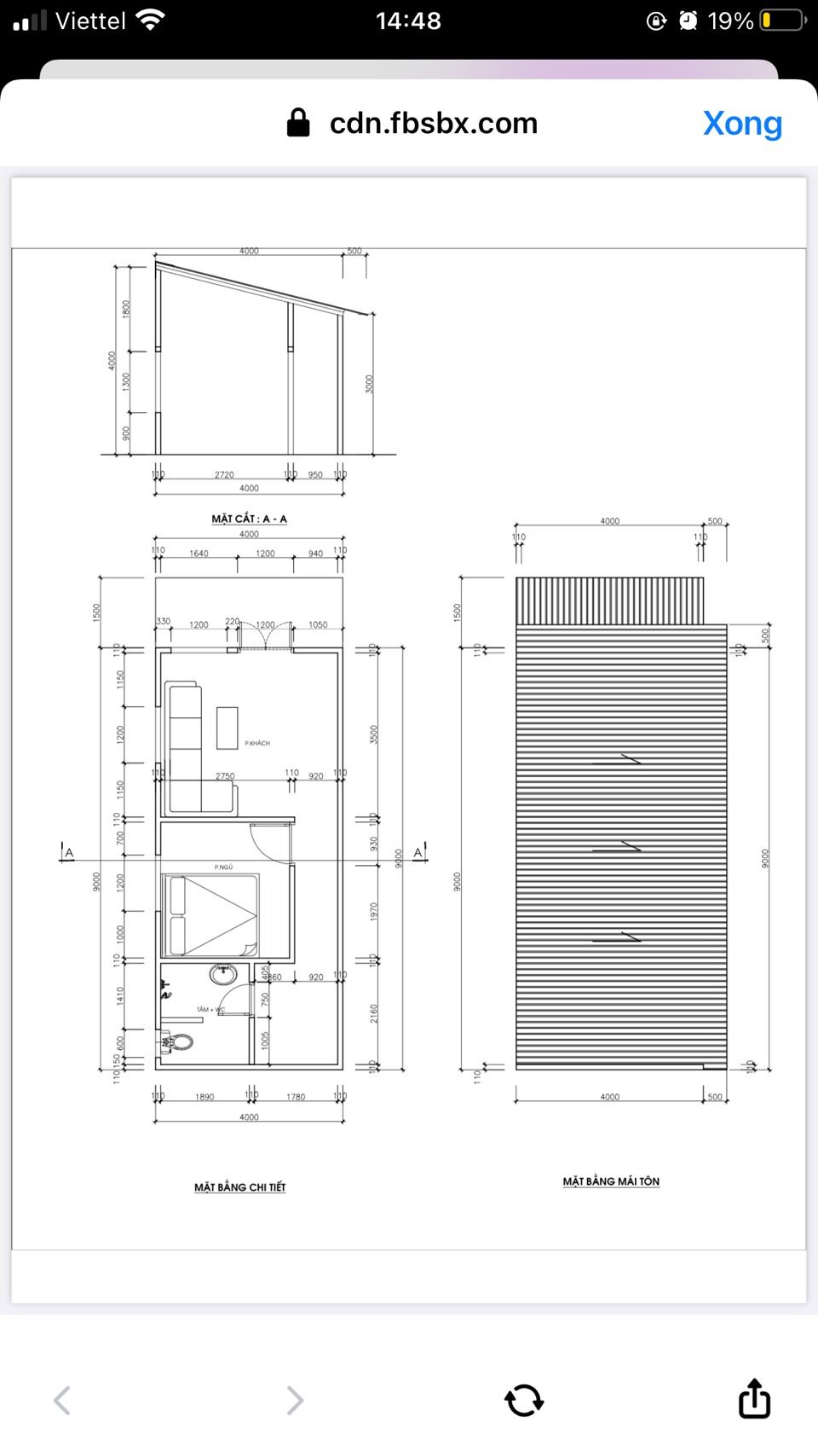
Hiện tại, qua thời gia khảo giá tại địa phương e xin gửi mẫu thiết kế và dự trù kinh phí NNMU 40

Theo gia đình 2 bác xem thì chọn 6h15p ngày 11/2 âm lịch tức ngày 13/3/2022 động thổ khởi công.
E đã làm việc với gia đình, gđ em trai 2 bác sẽ góp 20 triệu đề 2 bác xây nhà, nhưng hiện tại do gia đình chưa có điều kiện nên hẹn sẽ trả cho NTCM khoảng trong 5-6 tháng.
E sẽ có trách nhiệm làm giấy cam kết với gia đình có UBND xã chứng kiến ạ.
« Sửa lần cuối: 11-03-2022 21:19:13 gửi bởi qdiso »

 
The following users thanked this post: ThaiDzuy, banbe6x, Tieuhuongduong, maitramtg


Ngủ rồi Kẹo Đắng TH

Chào cả nhà NTCM cùng quý mạnh thường quân!

Em xin cập nhật thống kê ủng hộ chương trình NNMU40 đến thời điểm hiện tại qua các phần cập nhật ạ.

Chúc cả nhà mạnh khỏe
« Sửa lần cuối: 11-03-2022 11:09:02 gửi bởi Kẹo Đắng TH »

Kẹo đắng
 
The following users thanked this post: ThaiDzuy, banbe6x, Tieuhuongduong, maitramtg


Ngủ rồi DucTai

Chào cả nhà! 
Gia đình DucTai xin phép đóng góp 2 triệu ( đã chuyển tiền vào tài khoản quỹ MB bank) 
Mong cả nhà tiếp tục chung tay! 
Thân! 

 
The following users thanked this post: ThaiDzuy, banbe6x, Tieuhuongduong, maitramtg


Ngủ rồi Tieuhuongduong

Gia đình anh Tùng ủng hộ 1 triệu, bạn Trang ủng hộ 1 triệu.

Tieuhuongduong đã chuyển vào tài khoản thủ quỹ.

Mong cả nhà tiếp tục đóng góp.

Cảm ơn cả nhà!

Vì ta cần nhau!
 
The following users thanked this post: ThaiDzuy, banbe6x, phuclehuu, maitramtg


Ngủ rồi ThaiDzuy

  • Moderator
  • Người Tôi Cưu Mang
  • *****
  • Bài viết: 4.301
  • Thanked: 4615 times
  • Thích 15
  • Giới tính: Nam
Bảng cập nhật tới ngày 9/2/2022 đây ạ. 33,5tr VND. Còn thiếu hơn 50% nữa - Mong cả nhà ủng hộ ạ.

Thân mến,

ThaiDzuy


Từ đây người biết thương người...
 
The following users thanked this post: banbe6x, Tieuhuongduong, phuclehuu, DucTai, maitramtg, Trần Quốc Hương


Ngủ rồi Kẹo Đắng TH

Chào cả nhà NTCM cùng quý mạnh thường quân!

Em cập nhật thống kê ủng hộ chương trình NNMU40 đến thời điểm hiện tại qua các phần cập nhật:
« Sửa lần cuối: 09-02-2022 10:19:36 gửi bởi Kẹo Đắng TH »

Kẹo đắng
 
The following users thanked this post: ThaiDzuy, banbe6x, Tieuhuongduong, phuclehuu, maitramtg