Tác giả Chủ đề: Thanh Hoá (Quảng Xương) - NNMU47 - Gđ Bà Nguyễn Thị Khuyên  (Đã xem 6628 lần)

0 Thành viên và 1 Khách đang xem chủ đề.

Ngủ rồi Ngọc Tình PC

  • Ngoc Tinh PC - Camera
  • Tích Cực
  • **
  • Bài viết: 160
  • Thanked: 346 times
  • Thích 0
  • Giới tính: Nam
  • Tin Vào Lòng Nhân Ái
Ngôi nhà mơ ước 47 Hoàng Gia Quảng Xương Thanh Hóa đã lợp mái tôn , Công trình đang đi vào đường điện và ống nước để cho thợ hoàn thiện khâu rát

Người Tôi Cưu Mang - Thanh Hóa
 
The following users thanked this post: banbe6x, kim bang, Quý Đôn


Ngủ rồi Ngọc Tình PC

  • Ngoc Tinh PC - Camera
  • Tích Cực
  • **
  • Bài viết: 160
  • Thanked: 346 times
  • Thích 0
  • Giới tính: Nam
  • Tin Vào Lòng Nhân Ái
🏚️🏚️🏚️Ngôi nhà mơ ước 47 Quảng Xương Thanh Hóa đang dần dần hoàn thiện , công trình đã đi vào trát tường . 

Người Tôi Cưu Mang - Thanh Hóa
 
The following users thanked this post: ThaiDzuy


Ngủ rồi ThaiDzuy

  • Moderator
  • Người Tôi Cưu Mang
  • *****
  • Bài viết: 4.301
  • Thanked: 4615 times
  • Thích 15
  • Giới tính: Nam
Chào cả nhà,

Chi phí 50m đường dây điện từ cột vào nhà tầm 2tr, đề nghị nhóm bổ sung luôn vào chi phí hoàn thiện NNMU47 nhé!

Thân mến,

ThaiDzuy 

Từ đây người biết thương người...
 
The following users thanked this post: banbe6x


Ngủ rồi Ngọc Tình PC

  • Ngoc Tinh PC - Camera
  • Tích Cực
  • **
  • Bài viết: 160
  • Thanked: 346 times
  • Thích 0
  • Giới tính: Nam
  • Tin Vào Lòng Nhân Ái
Do thời tiết ảnh hưởng mưa bảo . NNMU 47 đang bị chậm lại theo kết hoặc . Nhưng thợ vẫn tranh thủ từng lúc để làm . Hiện đang lên tường.               Em xin phép thêm ý kiến tý ạ .               Do đường dây điện tổng của nhà từ cột vào tới nhà đã quá kém , cộng thêm quá trình máy móc công suất lớn khi làm nhà , ảnh hưởng mưa to nên đường dây điện đã bị chập cháy hư hỏng toàn bộ . Và nhà xin ý kiến để mua đường dây mới tầm 50m từ cột vào nhà để đảm bảo an toàn cho gia đình và đồ dùng sau này ạ . 
 Em xin cảm ơn ạ .

Người Tôi Cưu Mang - Thanh Hóa
 
The following users thanked this post: ThaiDzuy, banbe6x


Ngủ rồi Ngọc Tình PC

  • Ngoc Tinh PC - Camera
  • Tích Cực
  • **
  • Bài viết: 160
  • Thanked: 346 times
  • Thích 0
  • Giới tính: Nam
  • Tin Vào Lòng Nhân Ái
      Dạ hôm nay có anh Sơn cùng xã Quảng Giao đã ủng hộ NNMU 47, của ít lòng nhiều ạ  500k ạ . Tiền đã ck vào thủ quỹ của NNMU 47 rồi ạ

Người Tôi Cưu Mang - Thanh Hóa
 
The following users thanked this post: ThaiDzuy, banbe6x


Ngủ rồi Ngọc Tình PC

  • Ngoc Tinh PC - Camera
  • Tích Cực
  • **
  • Bài viết: 160
  • Thanked: 346 times
  • Thích 0
  • Giới tính: Nam
  • Tin Vào Lòng Nhân Ái
Ngày mai 25 tháng 10 thợ xây móng NNMU 47 ạ tại gia đình bà Khuyên Quảng Giao ạ.
« Sửa lần cuối: 24-10-2024 16:10:41 gửi bởi Ngọc Tình PC »

Người Tôi Cưu Mang - Thanh Hóa
 
The following users thanked this post: ThaiDzuy


Ngủ rồi Ngọc Tình PC

  • Ngoc Tinh PC - Camera
  • Tích Cực
  • **
  • Bài viết: 160
  • Thanked: 346 times
  • Thích 0
  • Giới tính: Nam
  • Tin Vào Lòng Nhân Ái
👍👍👍Hôm nay em đã nhận đc sự ủng hộ Sơn nhà . 
♥️♥️♥️ Em xin chân thành cảm ơn CTY Đại Thành đã ủng hộ NNMU 47 sơn ạ . Em đã nhận được rồi ạ

Người Tôi Cưu Mang - Thanh Hóa
 
The following users thanked this post: ThaiDzuy, banbe6x, kim bang


Ngủ rồi Hoa xương rồng

Sáng nay, nhờ sự giúp đỡ của bà con thôn xóm, chính quyền xã, đại diện nhóm NTCM Thanh Hoá , gđ bà Khuyên đã tiến hành động thổ NNMU số 47. Cảm ơn đội ngũ thiết kế vô cùng nhiệt tình, sửa đi sửa lại ko biết bao lần để đúng ý gia chủ.Bên xã cũng báo anh em thợ lên Uỷ ban lấy cửa về tận dụng sửa chữa dần để lắp ráp cho phù hợp với thiết kế ngôi nhà. Dự tính sẽ hoàn thiện ngôi nhà sau 1 tháng nếu k mưa bão. Thanks!

 
The following users thanked this post: ThaiDzuy, banbe6x, kim bang, Yến Tạ


Ngủ rồi Tieuhuongduong


Gia đình Thanh Hà ủng hộ 2 triệu, đã chuyển khoản cho Thủ quỹ.

Chúc NNMU47 sớm hoàn thành!





Vì ta cần nhau!
 
The following users thanked this post: ThaiDzuy, kim bang, Yến Tạ


Ngủ rồi ThaiDzuy

  • Moderator
  • Người Tôi Cưu Mang
  • *****
  • Bài viết: 4.301
  • Thanked: 4615 times
  • Thích 15
  • Giới tính: Nam
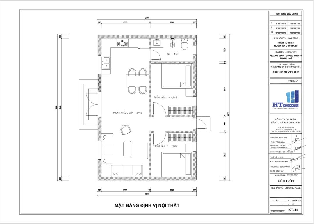
Gửi cả nhà bản vẽ thiết kế cho NNMU47 nhé ạ! 

Cảm ơn nhân viên Công ty HT của thành viên Rùa con đã giúp đỡ! 

Thân mến,

ThaiDzuy

Từ đây người biết thương người...
 
The following users thanked this post: Tieuhuongduong, kim bang


Ngủ rồi Hoa xương rồng

Hoa xương rồng đã nhận được :50.000.000đ( Năm mươi triệu đồng chẵn). Cảm ơn cả nhà nhiều!

 
The following users thanked this post: banbe6x, Tieuhuongduong


Ngủ rồi trangvitgioi

  • Thành Viên Gắn Kết
  • Người Tôi Cưu Mang
  • ****
  • Bài viết: 4.048
  • Thanked: 1564 times
  • Thích 8
Mến chào cả nhà
Ngày mai 23/10/2024 gia đình bà Khuyên tiến hành động thổ. Vậy nhóm NTCM Thanh Hoá xin được tạm ứng số tiền: 
Đợt 1 - 50tr ( Năm mươi triệu đồng chẵn) Vào số tk:
0781000398432
CTK: Trần Thị Thu Phương
Tại NH Vietcombank Thanh Hoá
Thanks!
@trangvitgioi : Em thực hiện dùm nhé !
Vịt đã thực hiện. Cảm ơn mọi người nhanh chóng chung tay thực hiện NNMU 47. Chúc Ngôi Nhà sớm hoàn thành.

 
The following users thanked this post: ThaiDzuy, banbe6x, Tieuhuongduong, kim bang


Ngủ rồi banbe6x

  • BAN QUẢN TRỊ
  • Người Tôi Cưu Mang
  • *****
  • Bài viết: 12.793
  • Thanked: 11672 times
  • Thích 113
  • Giới tính: Nam
Mến chào cả nhà
Ngày mai 23/10/2024 gia đình bà Khuyên tiến hành động thổ. Vậy nhóm NTCM Thanh Hoá xin được tạm ứng số tiền: 
Đợt 1 - 50tr ( Năm mươi triệu đồng chẵn) Vào số tk:
0781000398432
CTK: Trần Thị Thu Phương
Tại NH Vietcombank Thanh Hoá


Thanks!

@trangvitgioi : Em thực hiện dùm nhé !

Xin cảm ơn sự chung tay của cả nhà và chúc mọi người luôn mạnh khỏe ạ.

Thân mến.

Không mong Đến, chẳng cầu Đi
Không phân Khôn - Dại còn chi để buuồn
Tâm như nước chảy trên nguồn
Soi hình Tạo hóa mà không lưu hình
                                                          BS
 
The following users thanked this post: ThaiDzuy


Ngủ rồi Lucky Flower

  • ĐIỀU PHỐI VIÊN
  • Tích Cực
  • ****
  • Bài viết: 187
  • Thanked: 389 times
  • Thích 0
  • Giới tính: Nữ
  • Hương Sen
Chào cả nhà!
Em xin gửi thống kê ủng hộ NNMU47 đến 12h11 ngày 22/10/2024, số tiền là 57.300.000đ

♥️♥️♥️♥️♥️♥️♥️♥️♥️
Thanks & Best regards !
Lucky!

🌸 Bông hoa đá 🌸
 
The following users thanked this post: ThaiDzuy, banbe6x, kim bang


Ngủ rồi ThaiDzuy

  • Moderator
  • Người Tôi Cưu Mang
  • *****
  • Bài viết: 4.301
  • Thanked: 4615 times
  • Thích 15
  • Giới tính: Nam
Bạn Nguyễn Việt Bắc ủng hộ NNMU47 số tiền 50 triệu. 

Chân thành cảm ơn bạn! 

Từ đây người biết thương người...
 
The following users thanked this post: banbe6x, kim bang, Yến Tạ