Tác giả Chủ đề: Đaklak (KrongBong) - NNMU43 - Gđ chị H Bianh Byă - Buôn Blak  (Đã xem 17622 lần)

0 Thành viên và 1 Khách đang xem chủ đề.

Ngủ rồi Nguyễn Hữu Hiệp

  • Cảm ơn đời mỗi sớm mai thức dậy - Ta có thêm một ngày nữa để yêu thương!
  • Tích Cực
  • **
  • Bài viết: 164
  • Thanked: 532 times
  • Thích 0
  • Giới tính: Nam
  • Tin Vào Lòng Nhân Ái
Khâu chuẩn bị vật liệu đã hoàn tất, ngày 19/5/2023 sẽ khởi công (nhằm ngày 1/4 âm lịch).
Rất mong quý nhà hảo tâm chung tay ủng hộ để NNMU43 sớm được hoàn thành ạh.

 
The following users thanked this post: ThaiDzuy, banbe6x, maitramtg


Ngủ rồi yugidazai

Chào cả nhà,

Người nhà yugi vừa chuyển tiền vào quỹ 10tr hôm qua (17/5).

Vậy là được gần 1/2 chi phí, mong cả nhà chung tay giúp sức thêm :)

Xin cám ơn.

 
The following users thanked this post: ThaiDzuy, banbe6x, phuclehuu, maitramtg, Chinh Ha


Ngủ rồi Nguyễn Hữu Hiệp

  • Cảm ơn đời mỗi sớm mai thức dậy - Ta có thêm một ngày nữa để yêu thương!
  • Tích Cực
  • **
  • Bài viết: 164
  • Thanked: 532 times
  • Thích 0
  • Giới tính: Nam
  • Tin Vào Lòng Nhân Ái
Cập nhật số tiền ủng hộ NNMU43 đến thời điểm hiện tại là 31.761.000 (Ba mươi mốt triệu bảy trăm sáu mươi mốt nghìn đồng)
Xin chân thành cảm ơn Quý MTQ, các nhà hảo tâm đã chung tay chia sẻ.

 
The following users thanked this post: ThaiDzuy, phuclehuu, maitramtg


Ngủ rồi Nguyễn Hữu Hiệp

  • Cảm ơn đời mỗi sớm mai thức dậy - Ta có thêm một ngày nữa để yêu thương!
  • Tích Cực
  • **
  • Bài viết: 164
  • Thanked: 532 times
  • Thích 0
  • Giới tính: Nam
  • Tin Vào Lòng Nhân Ái
THÀNH LẬP BAN CHỈ ĐẠO, BAN GIÁM SÁT VÀ THỦ QUỸ XÂY DỰNG NNMU43

Phụ trách chính: BS Châu Thị Kim Phụng (TP. BMT)
Thủ quỹ: Chị Nguyễn Thị Chính, PCT Hội LHPN xã Cư Pui
Giám sát: Ông Nguyễn Văn Tâm, Bí thư Đảng ủy xã Cư Pui.
Cập nhật tiến độ xây dựng và kinh phí hỗ trợ: Thầy Nguyễn Hữu Hiệp, trường THCS Cư Pui
« Sửa lần cuối: 17-05-2023 16:05:08 gửi bởi Nguyễn Hữu Hiệp »

 
The following users thanked this post: ThaiDzuy, maitramtg, Chinh Ha


Ngủ rồi Nguyễn Hữu Hiệp

  • Cảm ơn đời mỗi sớm mai thức dậy - Ta có thêm một ngày nữa để yêu thương!
  • Tích Cực
  • **
  • Bài viết: 164
  • Thanked: 532 times
  • Thích 0
  • Giới tính: Nam
  • Tin Vào Lòng Nhân Ái
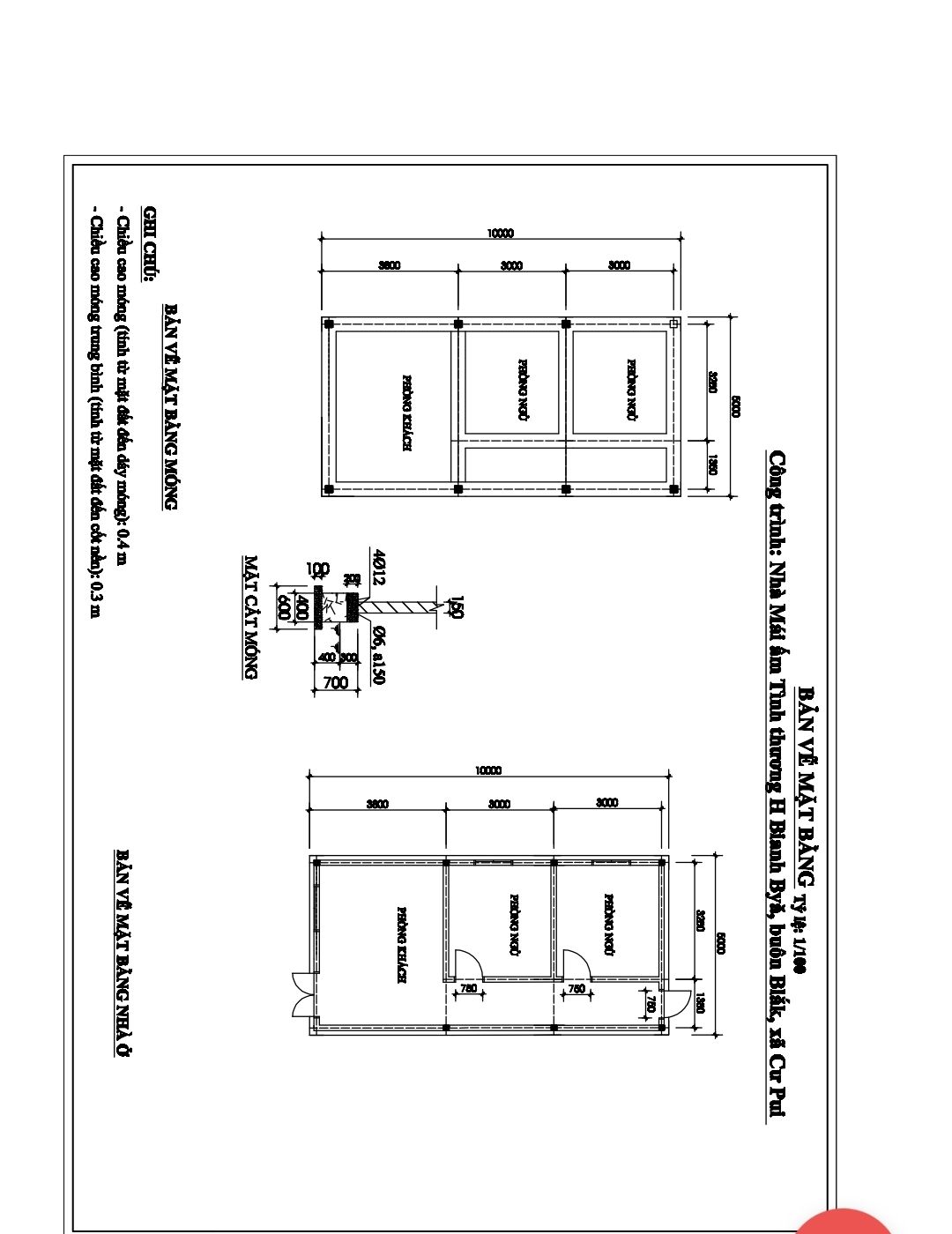
CẬP NHẬT BẢN THIẾT KẾ VÀ DỰ TOÁN KINH PHÍ NNMU43 

 
The following users thanked this post: ThaiDzuy, banbe6x, maitramtg


Ngủ rồi loanngyen1202

  • ĐIỀU PHỐI VIÊN
  • Người Tôi Cưu Mang
  • ****
  • Bài viết: 2.428
  • Thanked: 3300 times
  • Thích 22
Chào cả nhà, 

Biết đến chương trình các bạn uh ạ :

Bạn Lien Vo uh 200,000đ
Bạn Thuý Liệu uh 1,000,000đ
Bạn Nhân Hồ uh 300,000đ
Tập thể cty Cyberword uh 1,200,000đ 
Bạn Lê Nhật Minh uh 500,000đ
Bạn Dung Bùi uh 1,000,000đ 
Anh/chị Viet Kiet uh 1,000,000đ

Đã chuyển tiền vào Quỹ ạ. Cảm ơn các anh chị và các bạn nhiều ạ !! 

Người với người sống để yêu nhau !
 
The following users thanked this post: ThaiDzuy, banbe6x, maitramtg


Ngủ rồi ThaiDzuy

  • Moderator
  • Người Tôi Cưu Mang
  • *****
  • Bài viết: 4.301
  • Thanked: 4615 times
  • Thích 15
  • Giới tính: Nam

Anh Sang (anh yugi) xin giúp 6tr và yugi giúp 4tr, tổng cộng gia đình yugi giúp 10tr, sẽ nhờ người nhà chuyển tiền sớm.
Mong mọi người góp sức thê, chúc chương trình thành công tốt đẹp và gia đình H Bianh bya sớm có nhà mới.

Tuyệt vời quá! Sự mở hàng không thể vui hơn...
Cảm ơn anh Sang và yugi thật nhiều!

ThaiDzuy

Từ đây người biết thương người...
 
The following users thanked this post: banbe6x, maitramtg, Chinh Ha


Ngủ rồi Nguyễn Hữu Hiệp

  • Cảm ơn đời mỗi sớm mai thức dậy - Ta có thêm một ngày nữa để yêu thương!
  • Tích Cực
  • **
  • Bài viết: 164
  • Thanked: 532 times
  • Thích 0
  • Giới tính: Nam
  • Tin Vào Lòng Nhân Ái
Thư Ngỏ của UBMT TQ VN xã Cư Pui 

 
The following users thanked this post: ThaiDzuy, banbe6x, yugidazai, phuclehuu, loanngyen1202, maitramtg


Ngủ rồi yugidazai

Chào cả nhà,

Anh Sang (anh yugi) xin giúp 6tr và yugi giúp 4tr, tổng cộng gia đình yugi giúp 10tr, sẽ nhờ người nhà chuyển tiền sớm.
Mong mọi người góp sức thê, chúc chương trình thành công tốt đẹp và gia đình H Bianh bya sớm có nhà mới.

Xin cám ơn.
 

 
The following users thanked this post: ThaiDzuy, banbe6x, phuclehuu, loanngyen1202, maitramtg


Ngủ rồi ThaiDzuy

  • Moderator
  • Người Tôi Cưu Mang
  • *****
  • Bài viết: 4.301
  • Thanked: 4615 times
  • Thích 15
  • Giới tính: Nam
Chào cả nhà,

Hiện chúng ta có đủ giấy tờ pháp lý cho việc thực hiện NNMU43. BQT đồng thuận thực hiện chương trình này.

Mong cả nhà cùng ủng hộ ạ!

ThaiDzuy

Từ đây người biết thương người...
 
The following users thanked this post: banbe6x, phuclehuu, loanngyen1202, maitramtg


Ngủ rồi Nguyễn Hữu Hiệp

  • Cảm ơn đời mỗi sớm mai thức dậy - Ta có thêm một ngày nữa để yêu thương!
  • Tích Cực
  • **
  • Bài viết: 164
  • Thanked: 532 times
  • Thích 0
  • Giới tính: Nam
  • Tin Vào Lòng Nhân Ái
Trích lục bản đồ địa chính mảnh đất thuộc chủ quyền sở hữu của gia đình chị Bianh Byă
Dự kiến xây dựng NNMU43

 
The following users thanked this post: ThaiDzuy, banbe6x


Ngủ rồi ThaiDzuy

  • Moderator
  • Người Tôi Cưu Mang
  • *****
  • Bài viết: 4.301
  • Thanked: 4615 times
  • Thích 15
  • Giới tính: Nam
Cảm ơn Nguyễn Hữu Hiệp đã xác minh thông tin về gia cảnh nhà chị H Bianh Bya. Đây thực sự là một hoàn cảnh cần sự giúp đỡ của chúng ta để gđ chị có Ngôi Nhà Mơ Ước.

Về tình hình giấy tờ pháp lý thế nào bạn ơi? Có được địa phương xác nhận không?

Mong tin bổ sung từ bạn và nhóm NTCM Cư Pui!

ThaiDzuy

Từ đây người biết thương người...
 
The following users thanked this post: banbe6x


Ngủ rồi Nguyễn Hữu Hiệp

  • Cảm ơn đời mỗi sớm mai thức dậy - Ta có thêm một ngày nữa để yêu thương!
  • Tích Cực
  • **
  • Bài viết: 164
  • Thanked: 532 times
  • Thích 0
  • Giới tính: Nam
  • Tin Vào Lòng Nhân Ái
KÍNH THƯA ĐẠI GIA ĐÌNH NGƯỜI TÔI CƯU MANG
KÍNH THƯA QUÝ MẠNH THƯỜNG QUÂN VÀ CÁC NHÀ HẢO TÂM
Hôm nay có dịp ghé thăm để xác minh hoàn cảnh của gia đình Chị H Bianh Byă (hộ khẩu buôn Blăk, xã Cư Pui, huyện Krông Bông, Đăk Lăk) mà không khỏi xót xa đến tột độ.
Trong căn nhà nhỏ đơn sơ, trống trải và siêu vẹo, chật chội và dột nát là nơi trú ngụ của gia đình có 6 thành viên với 3 con trai, vợ chồng chị cùng người bố ruột của chị bị bệnh tâm thần đang sống lang thang. Điều đáng trăn trở là đứa con trai đầu lòng sinh năm 2014 cũng bị bệnh tâm thần, không có khả năng kiểm soát hành vi của mình.
Gia đình thuộc diện một trong những hộ nghèo nhất của buôn, thu nhập chính của gia đình phụ thuộc vào anh Y Dol Niê (sinh năm 1985) chồng chị. Tuy nhiên công việc làm thuê mướn vẫn còn nhiều bấp bênh vì hiện nay cũng không dễ kiếm việc làm do nguồn thu nhập từ nông nghiệp ở địa phương trong những năm gần đây gặp nhiều trở ngại. Thêm nữa là gia đình không có đất canh tác lúa nước nên thiếu trước hụt sau.
Mùa mưa năm nay đang đến gần, nguy cơ ngôi nhà tạm bợ ấy không thể chống đỡ nổi để che chở cho những con người bất hạnh trong gia cảnh éo le ấy, vì vậy rất mong Đại gia đình Người Tôi Cưu Mang cũng như Quý nhà hảo tâm giúp đỡ để chị H Bianh Byă có được “Ngôi nhà mơ ước” làm chỗ dựa tinh thần cho chồng chị yên tâm mà bươn chải kiếm tiền chữa bệnh cho người thân cũng như nuôi các con ăn học. Một lần nữa rất mong quý vị mở rộng vòng tay nhân ái bao la để gia đình chị sớm được ở trong ngôi nhà mới mà bao nhiêu năm qua chị H Bianh Cũng chỉ dám nghĩ đến trong những giấc mơ mà thôi.
Xin chân thành biết ơn Quý vị rất nhiều
P/S: Hôm nay lên nhà thì chỉ có ba mẹ con chị ở nhà vì anh chồng đi làm thuê, một số hình ảnh cập nhật vào ngày 13/5/2023
« Sửa lần cuối: 13-05-2023 15:37:43 gửi bởi Nguyễn Hữu Hiệp »

 
The following users thanked this post: ThaiDzuy, yugidazai, Lê Cẩm Nhung, Chinh Ha


Ngủ rồi ThaiDzuy

  • Moderator
  • Người Tôi Cưu Mang
  • *****
  • Bài viết: 4.301
  • Thanked: 4615 times
  • Thích 15
  • Giới tính: Nam
Cảm ơn chị phung_cupui đã thông tin. Hoàn cảnh này thật đáng thương, nghèo khó và bệnh tật.

Mong thông tin xác minh từ đầu cầu Cư Pui ạ.

Thân mến,

ThaiDzuy

Từ đây người biết thương người...
 
The following users thanked this post: lathuvang, banbe6x, phuclehuu, Chinh Ha


Ngủ rồi phung_cupui

Chào cả nhà thân ái!
Thêm một hoàn cảnh cần được hỗ trợ nâng đỡ ở Cư Pui ạ, đây là trường hợp của gia định chị H Bianh bya, sinh năm 1993 tại Buôn Blak, xã cư pui, huyện krong Bông, tỉnh đăk lăk. Nhà chị là hộ nghèo của xã, nhà chị có 6 thành viên gồm 3 con trai, vợ chồng chị cùng
bố ruột của chị bị bệnh tâm thần đang sống lang thang, con trai lớn 2014 cũng bị bệnh tâm thần, hiện tại gia đình chị thu nhập chính bằng ngày công làm thuê của chồng chị là anh Y Dol niê sinh năm 1985.căn nhà hiện tại rách nát, không thể che mưa nắng.... cuộc sống quá cơ cực, nghèo khó!!!
Mong cả nhà đồng hành chia sẻ cùng với hoàn cảnh này ạ! Cũng như những hoàn cảnh ở cu pui, Chính quyền địa phương luôn đồng hành cùng NTCM trong vấn đề xây dựng và hỗ trợ NNMU
Em xin gửi ít hình ảnh của gia đình chị ạ!
« Sửa lần cuối: 11-05-2023 13:49:25 gửi bởi ThaiDzuy »

 
The following users thanked this post: ThaiDzuy, lathuvang, banbe6x, phuclehuu, Chinh Ha