Tác giả Chủ đề: Daklak (KrongBong) - NNMU44 - Gia đình cô HNẮP BYA- Đăk Tuôr  (Đã xem 20745 lần)

0 Thành viên và 1 Khách đang xem chủ đề.

Ngủ rồi ThaiDzuy

  • Moderator
  • Người Tôi Cưu Mang
  • *****
  • Bài viết: 4.301
  • Thanked: 4615 times
  • Thích 15
  • Giới tính: Nam
Chào cả nhà,

Cảm ơn nhóm NTCM Dak Lak đã phối hợp các thông tin xác minh đầy đủ, chi tiết. BQT đồng thuận với việc triển khai NNMU số 44 cho gia đình cô H Nắp Byă. 

Chúng ta cùng nhau kêu gọi ủng hộ để triển khai sớm ạ!

Thân mến,

ThaiDzuy

Từ đây người biết thương người...
 
The following users thanked this post: maitramtg


Ngủ rồi Nguyễn Hữu Hiệp

  • Cảm ơn đời mỗi sớm mai thức dậy - Ta có thêm một ngày nữa để yêu thương!
  • Tích Cực
  • **
  • Bài viết: 164
  • Thanked: 532 times
  • Thích 0
  • Giới tính: Nam
  • Tin Vào Lòng Nhân Ái
1. Thư Ngỏ của UBMT TQ VN xã Cư Pui kêu gọi xây dựng NNMU số 44 cho gia đình bà H Nắp Byă tại buôn Đăk Tuôr, xã Cư Pui, huyện Krông Bông.
2. Giấy tờ pháp lý chứng minh quyền sử dụng đất của gia đình bà H Nắp Byă để làm cơ sở xây dựng NNMU số 44.
Kính xin quý mạnh thường quân xem xét và đồng thuận.
Xin chân thành cảm ơn
« Sửa lần cuối: 20-11-2023 16:32:17 gửi bởi Nguyễn Hữu Hiệp »

 
The following users thanked this post: ThaiDzuy, maitramtg


Ngủ rồi ThaiDzuy

  • Moderator
  • Người Tôi Cưu Mang
  • *****
  • Bài viết: 4.301
  • Thanked: 4615 times
  • Thích 15
  • Giới tính: Nam
Cảm ơn thông tin xác minh chi tiết cũng như bản dự toán và thiết kế sơ bộ của Nhóm NTCM Dak Lăk. 

Chúng ta cùng đợi thông tin pháp lý của mảnh đất rồi quyết định thực hiện nhé cả nhà!

Thân mến,

ThaiDzuy

Từ đây người biết thương người...
 
The following users thanked this post: maitramtg, Nguyễn Hữu Hiệp


Ngủ rồi Nguyễn Hữu Hiệp

  • Cảm ơn đời mỗi sớm mai thức dậy - Ta có thêm một ngày nữa để yêu thương!
  • Tích Cực
  • **
  • Bài viết: 164
  • Thanked: 532 times
  • Thích 0
  • Giới tính: Nam
  • Tin Vào Lòng Nhân Ái
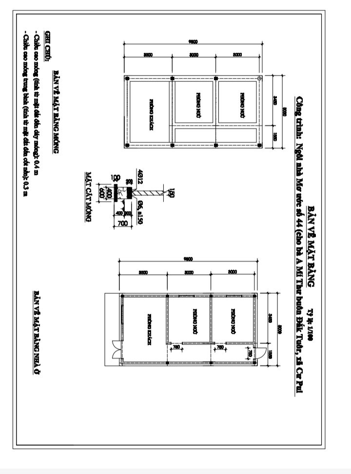
Bảng dự trù kinh phí NNMU số 44 cho gia đình bà H Nắp Byă là 90.057.000
Chín mươi triệu không trăm năm mươi bảy nghìn đồng.
Và bản thiết kế ngôi nhà.
Xin chân thành biết ơn đại gia đình NTCM và quý ân nhân đã giúp đỡ. 

 
The following users thanked this post: ThaiDzuy, maitramtg


Ngủ rồi Nguyễn Hữu Hiệp

  • Cảm ơn đời mỗi sớm mai thức dậy - Ta có thêm một ngày nữa để yêu thương!
  • Tích Cực
  • **
  • Bài viết: 164
  • Thanked: 532 times
  • Thích 0
  • Giới tính: Nam
  • Tin Vào Lòng Nhân Ái
Kính thưa quý mạnh thường quân, các nhà hảo tâm và Nhóm thiện nguyện NTCM.
 Hôm nay bản thân trực tiếp lên xác minh hoàn cảnh của gia đình 
Cô H Nắp Byă, buôn Đăk Tuôr, xã Cư Pui, huyện Krông Bông, tỉnh Đắk Lắk. Nhà cô chú hiện đang là hộ nghèo, đông con, tuy đã lớn tuổi nhưng hầu hết đều chưa lập gia đình do đa số đều không được khoẻ mạnh như bao nhiêu người khác, một phần là do cuộc sống trước đây qua khó khăn nên các con của cô mắc bệnh mà không có tiền thuốc thang nên hiện nay thể trạng không được bình thường, không có khả năng lao động. Bản thân cô và chồng cũng đều mắc bệnh và cũng không còn sức lao động
 Tháng 8 vừa qua, con gái của cô chú tên là H Ven Byă vừa mới chết vì bệnh đột quỵ, để lại cho cô chú 3 đứa trẻ còn đang học tiểu học. Trong những ngày đầu đông, khi tiết trời trở lạnh, trong căn nhà hiện tại rách nát, mái tôn cũ dột, vách nứa mục nát không đủ ấm để che chở cho 8 nhân khẩu trước cuộc sống quá cơ cực, nghèo khó!!!
Hiện nay mong muốn lớn nhất của gia đình là có được một nơi ăn chốn ở để vượt qua khó khăn trở ngại lớn nhất, đó sẽ là niềm tin, động lực là nơi gởi gắm những ước mơ để các cháu nhỏ chuyên tâm học tập và vươn lên trong cuộc sống.
Mong Đại gia đình NTCM và Quý MTQ hỗ trợ xây dựng NNMU số 44 để hỗ trợ để mơ ước nhỏ nhoi sớm trở thành hiện thực.
Xin trân trọng biết ơn.


 
The following users thanked this post: ThaiDzuy, maitramtg


Ngủ rồi ThaiDzuy

  • Moderator
  • Người Tôi Cưu Mang
  • *****
  • Bài viết: 4.301
  • Thanked: 4615 times
  • Thích 15
  • Giới tính: Nam
Chào cả nhà,

Cảm ơn thông tin của chị Phung_cupui. Hoàn cảnh gia đình thật đáng thương, đặc biệt 3 cháu nhỏ. Mong nhóm thành viên ở Cư Pui thu xếp xác minh sớm ạ.

Thân mến,

ThaiDzuy

Từ đây người biết thương người...
 
The following users thanked this post: maitramtg


Ngủ rồi phung_cupui

Chào cả nhà thân ái!
Thêm một hoàn cảnh cần được hỗ trợ nâng đỡ ở Cư Pui ạ! Đây là trường hợp của gia định Cô H Nắp Bya, buôn Đăk Tuôr, xã Cư Pui, huyện Krông Bông, tỉnh Đắk Lắk Nhà cô chú hiện đang là hộ nghèo của xã, con gái của cô chú vừa mới chết vì bệnh đột quỵ, để lại cho cô chú 3 đứa trẻ còn đang học tiểu học. Căn nhà hiện tại rách nát, không thể che mưa nắng.... cuộc sống quá cơ cực, nghèo khó!!!
Mong những Mạnh thường quân và cả nhà NTCM cùng đồng hành chia sẻ cùng với hoàn cảnh này! để cô chú có 1 chỗ ở ấm áp lúc tuổi già cùng 3 cháu nhỏ!
Cũng như những hoàn cảnh khác ở Cư Pui, Chính quyền địa phương vẫn  luôn đồng hành cùng NTCM trong việc  xây dựng và hỗ trợ NNMU!
Em xin gửi ít hình ảnh của gia đình Cô chú ạ!
Trân trọng!
Phụng-cupui
« Sửa lần cuối: 05-11-2023 19:40:53 gửi bởi phung_cupui »

 
The following users thanked this post: ThaiDzuy, maitramtg